Душевой угол Veconi Rovigo RV-072B, 1200х700х1900 черный, стекло прозрачное
Vendor code:RV072B-12070-01-C4
О товаре
Характеристики
Форма углов
Прямоугольный
Материал профиля
анодированный алюминий
Толщина полотна двери мм
6 мм
Цвет полотна двери
прозрачное
Исполнение полотна двери
прозрачное
Серия
Rovigo
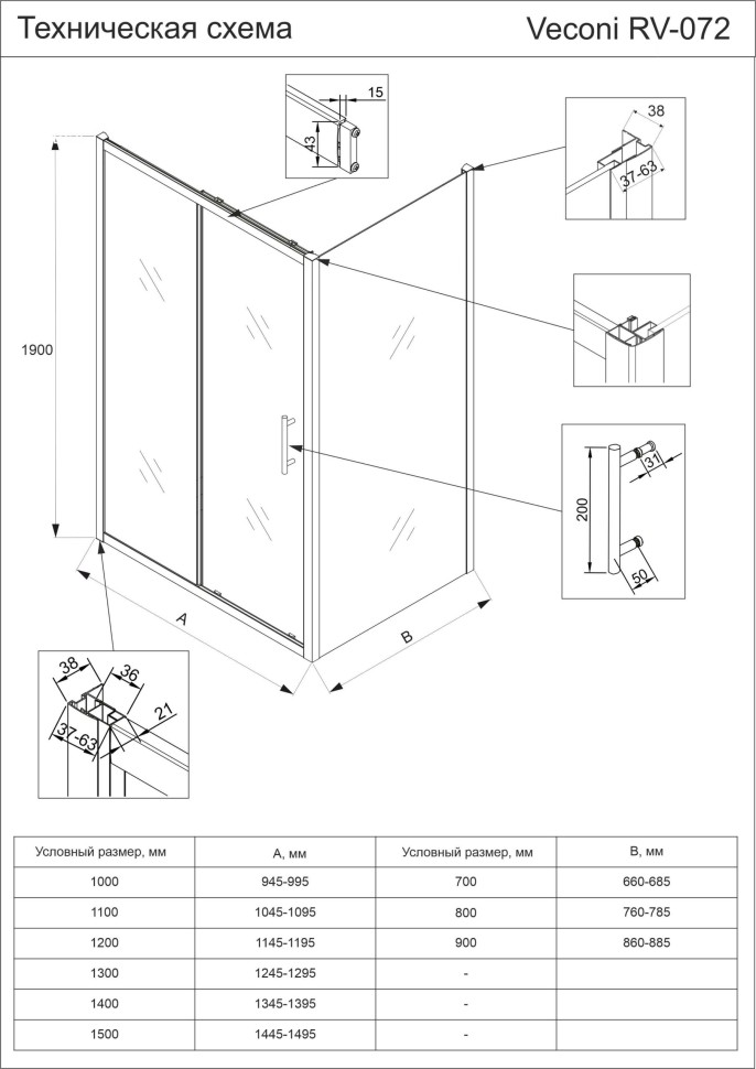
Ширина мм
1200 м
Высота мм
1900 м
Глубина мм
700 м
Цвет
черный
Регулируемая ширина мм
1145-1195х660-685
Тип открывания дверей
раздвижная
Количество дверей
1
Ширина входа, мм
479
Ориентация
универсальная
Монтаж
пристенный, в угол, на поддон, напольный (без поддона)
Вес
54 кг
Бренд
Veconi
Страна
Италия
Гарантия
2 года
Поддон в комплекте
нет, приобретается отдельно
Материал полотна двери
закаленное стекло
Цвет профиля
черный
Модель
RV-072B























