Душевой угол Veconi Rovigo RV-072, 1000х1000х1900 хром, стекло прозрачное
Vendor code:RV072-100100-01-C4
О товаре
Характеристики
Форма углов
Прямоугольный
Материал профиля
Анодированный алюминий
Толщина полотна двери мм
6 мм
Цвет полотна двери
прозрачное
Исполнение полотна двери
прозрачное
Серия
Rovigo
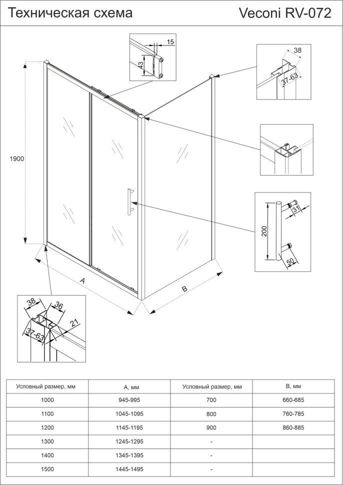
Ширина мм
1000 м
Высота мм
1900 м
Глубина мм
1000 м
Цвет
хром
Регулируемая ширина мм
945-995х960-985
Тип открывания дверей
раздвижная
Количество дверей
1
Ширина входа, мм
379
Ориентация
Универсальная
Монтаж
пристенный, в угол, на поддон, напольный (без поддона)
Бренд
Veconi
Страна
Италия
Гарантия
2 года
Поддон в комплекте
Нет, приобретается отдельно
Материал полотна двери
закаленное стекло
Цвет профиля
хром
Модель
RV-072


























