Душевой угол Veconi Rovigo RV-046B, 1200х900х1950, черный, стекло прозрачное
Vendor code:RV046B-12090-01-C5
О товаре
Характеристики
Форма углов
Прямоугольный
Материал профиля
Анодированный алюминий
Толщина полотна двери мм
6 мм
Цвет полотна двери
прозрачное
Исполнение полотна двери
прозрачное
Серия
Rovigo
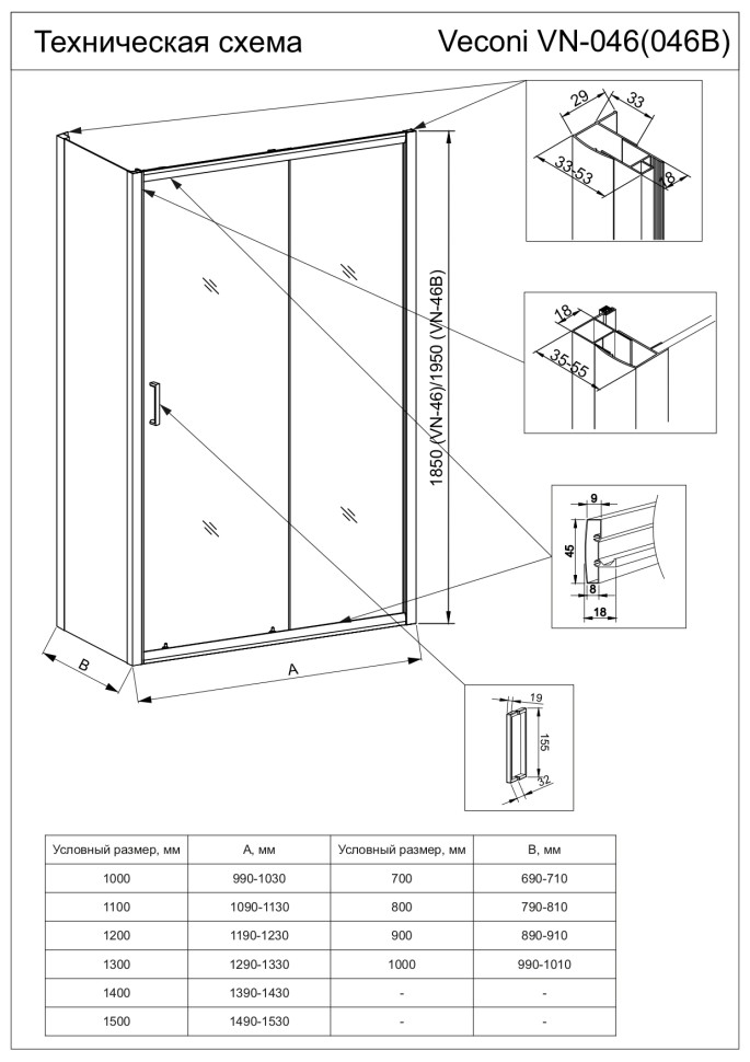
Ширина мм
1200 м
Высота мм
1950 м
Глубина мм
900 м
Цвет
черный
Регулируемая ширина мм
1190-1230х890-910
Тип открывания дверей
раздвижная
Количество дверей
1
Ширина входа, мм
510
Ориентация
Универсальная
Монтаж
пристенный, в угол, на поддон, напольный (без поддона)
Вес
64 кг
Бренд
Veconi
Страна
Италия
Гарантия
2 года
Поддон в комплекте
Нет, приобретается отдельно
Материал полотна двери
закаленное стекло
Цвет профиля
черный
Модель
RV-046B
























