Душевой уголок BelBagno UNO-195-AH-2-120/80-P-Cr
Vendor code:UNO-195-AH-2-120/80-P-Cr
О товаре
Характеристики
Материал профиля
анодированный алюминий
Серия
UNO-195
Форма
прямоугольная
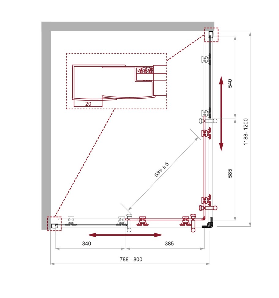
Регулируемая ширина мм
1188-1200
Тип открывания дверей
раздвижная
Количество дверей
2
Толщина стекла
5 мм
Тип стекла
Рифленая
Ширина входа, мм
589
Ориентация
универсальная
Монтаж
Напольный, на поддон, пристенный в угол
Вес
44.2 кг
Бренд
BelBagno
Страна
Италия
Гарантия
3 года
Комплектация
Двойные подшипниковые ролики
Дополнительная информация
Матовый
Поддон в комплекте
нет, приобретается отдельно
Материал полотна двери
закаленное стекло
Цвет профиля
хром
Назначение
Душевой уголок



































