Душевой уголок BelBagno UNO-195-AH-2-100/80-P-Cr
Vendor code:UNO-195-AH-2-100/80-P-Cr
О товаре
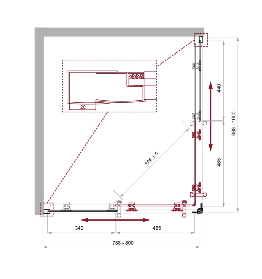
Характеристики
Материал профиля
анодированный алюминий
Серия
UNO-195
Форма
прямоугольная
Регулируемая ширина мм
988-1000
Тип открывания дверей
раздвижная
Количество дверей
2
Толщина стекла
5 мм
Тип стекла
Рифленая
Ширина входа, мм
506
Ориентация
универсальная
Монтаж
Напольный, на поддон, пристенный в угол
Вес
39.4 кг
Бренд
BelBagno
Страна
Италия
Гарантия
3 года
Комплектация
Двойные подшипниковые ролики
Дополнительная информация
Матовый
Поддон в комплекте
нет, приобретается отдельно
Материал полотна двери
закаленное стекло
Цвет профиля
хром
Назначение
Душевой уголок



































