Шкаф-пенал для ванной Aquanet Бруклин 35 белый
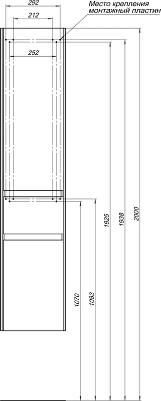
Шкаф-пенал для ванной Aquanet Бруклин 35 белого цвета для подвесной установки Изделие отвечает тенденциям минимализма Аскетизм четких линий и обтекаемых форм в ней доведен до совершенства В модели нет никаких выделяющихся деталей, и даже ручки интегрированные, когда открывание происходит за счет выступающей детали верхней или нижней части фасада, которая срезана под углом, в результате чего образуется выемка, служащая ручкой В пенале две зоны хранения разделены выдвижным ящиком, где удобно хранить мелкие предметы В верхней зоне хранения три полки, в нижней – две Корпус изделия выполнен из выкрашенного белой краской влагостойкого ЛДСП, фасады – из МДФ На контрасте с белизной внешних деталей стильно смотрится корпус выдвижного ящика, выполненный в цвете «дуб сонома»





































